LEMON Manuals: Even more car manuals for everyone
Home >> Acura >> 1993 >> Integra GS-R >> Repair and Diagnosis (Single Page) >> Electrical >> Charging Systems >> Alternator & Regulator >> On-Vehicle Testing >> Charging System Light Operation Test

Charging System Light Operation Test

  1. Turn ignition on. Charging system light should come on. If charging system light comes on, go to next step. If charging system light does not come on, go to step 6).
  2. Start engine. Charging system light should turn off. If charging system light stays on, go to next step. If charging system light turns off, charging system light circuit is functioning properly.
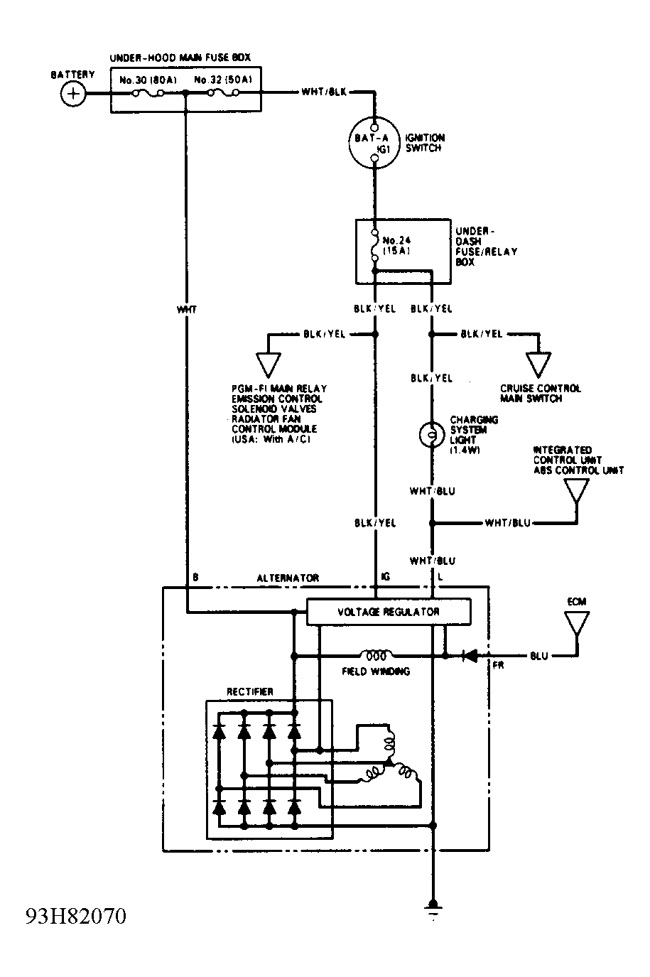
  3. Turn ignition off. Disconnect alternator 4-pin harness connector. Turn ignition on. If charging system light is on, turn ignition off and go to next step. If charging system light is off, go to ALTERNATOR/REGULATOR OUTPUT TEST .
  4. Disconnect ABS control module 18-pin connector. Disconnect integrated control module from under-dash fuse box.
  5. Turn ignition on. If charging system light is on, repair short to ground in White/Blue wire. See Figure. After making repairs, reconnect control module connectors and reset ECM to clear and codes.
  6. Turn ignition off. Check fuse No. 24. If fuse is good, go to next step. If fuse is blown, replace fuse.
  7. Disconnect alternator 4-pin harness connector. Turn ignition on. Measure voltage between ground and alternator 4-pin harness connector terminal "IG" (Black/Yellow wire). See Fig 1. Battery voltage should be present. If battery voltage is present, go to next step. If battery voltage is not present, repair open in Black/Yellow wire.
  8. Connect a fused jumper wire between ground and alternator 4-pin harness connector terminal "L" (White/Blue wire). See Fig 1. Charging system light should turn on. If charging system light turns on, replace voltage regulator.
  9. If charging system light does not turn on, check for blown charging system light bulb and replace as necessary. If bulb is good, repair open in White/Blue wire.
Fig 1: Testing Alternator Ignition Feed Circuit (Typical)
G93A82073Courtesy of AMERICAN HONDA MOTOR CO., INC.